| |

















|
|


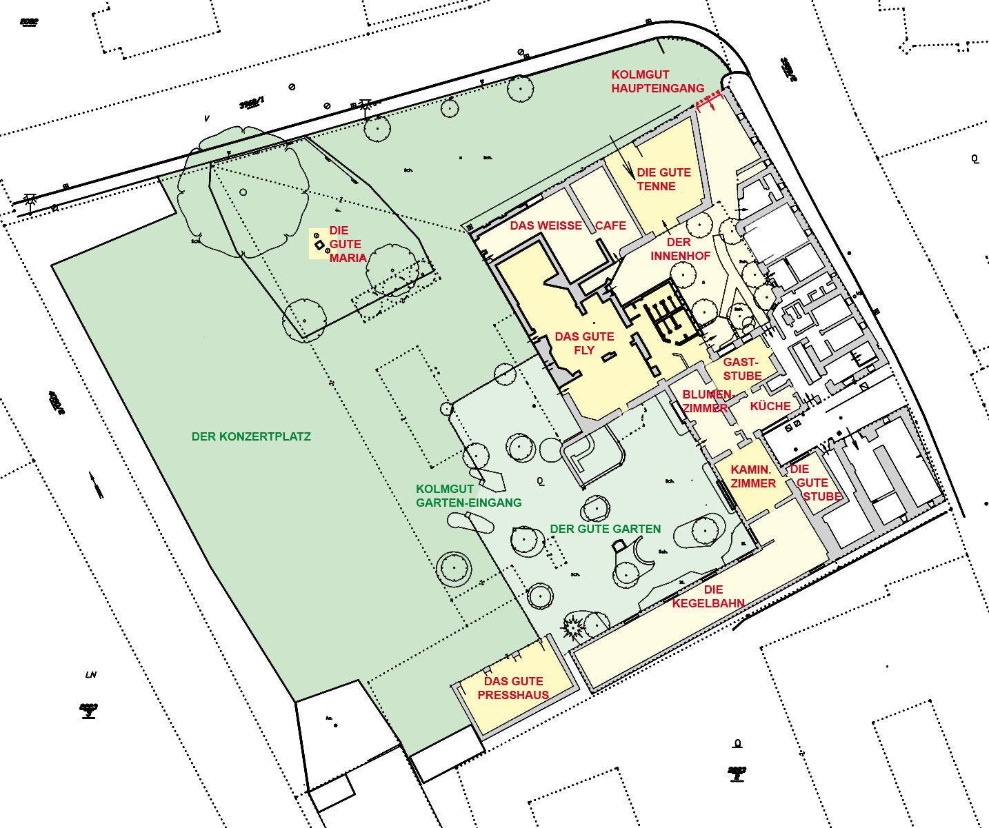
| Gaststube |
24 Personen |
|
Foto |
| Blumenzimmer |
37 Personen |
|
Foto |
| Kaminzimmer |
24 Personen |
|
Foto |
| Die gute Stube |
40 Personen |
|
Foto |
| Die Kegelbahn |
38 Personen |
|
Foto |
| Das Himmelreich |
250 Personen |
|
Foto |
| Die gute Tenne |
93,5 m2 |
|
Foto |
| Das gute Presshaus |
91,5 m2 |
|
Foto |
| Der gute Garten |
750,0 m2 |
|
Foto |
| Der Konzertplatz |
5000 Personen |
|
Foto |
| Der gute Plan |
|
|
Plan |
|